Тип: Стеновой
Модель: КПП 90-НЗ(С) (220,24)
Обозначение: КПП клапан противопожарный прямоугольный
Предел огнестойкости: 90
Назначение: НЗ
Обозначение электропривода: МНЕ
Оцинковка: 1 мм
Напряжение электропривода: 220В, 24В
Гарантия: 24 мес
Срок изготовления: от 1 дня
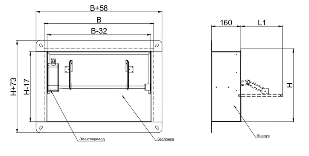
ПРЯМОУГОЛЬНЫЙ ПРОТИВОПОЖАРНЫЙ КЛАПАН НОРМАЛЬНО ЗАКРЫТЫЙ. EI 90/120
Предназначены для предотвращения распространения огня по системе вентиляции. Клапан стенового исполнения имеет конструкцию, предназначенную для монтажа в стенной проем. Данные клапаны могут монтироваться в перегородке лифтовых шахт. Клапан представляет собой прямоугольный корпус, изготовленный из 1 мм стали с внутренним размещением привода. Клапан имеет один присоединительный фланец шириной 60 мм. В нормальном состоянии заслонки данного типа клапана находится в закрытом положении и препятствует распространению воздушных потоков по системе дымоудаления. В случае возникновения пожара заслонки данного типа клапана открываются на этаже очага возгорания, на остальных же этажах и помещениях заслонка остается в закрытом положении и создает герметичную преграду, чтобы предотвратить распространение продуктов горения.
После получения запроса с Вами свяжется специалист для уточнения всех деталей.
Мы обработаем Ваш запрос и составим коммерческое предложение.
Оплату Вы производите после заключения договора а мы подготавливаем оборудование к отгрузке.